Australia

Contact Agent for Price

3 Malmsbury Street, Kew, Vic 3101

# Location

Description

‘Ivy Grange’: a significant Kew landmark. Inspections by private appointment only.

Unearth a world of potential with ‘Ivy Grange’: a historic Kew landmark sprawled across a huge 1,664sqm (approx.) block within easy walking distance of the buzzing Kew Junction.

Built in 1864 by prominent architect, Charles Vickers, whose other significant work includes Richmond Town Hall and the chapel at the former Pentridge Prison, it’s the chance of a lifetime to renovate a significant landmark property or secure a prized investment with the prospect of attractive returns.

Carrying the highest level of heritage overlay with its registration on the National Estate, few homes fulfil the classic credentials as much as this historically significant property, constructed from bluestone with distinctive cream brick accents.

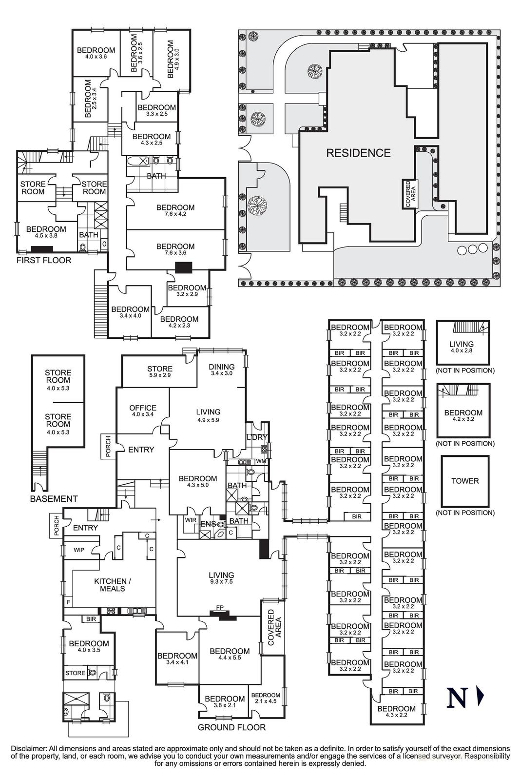
Extended in 1877 to include a double storey tower that provides dramatic 360-degree views of the city skyline, glimpses of Port Phillip Bay and sweeping vistas towards the Macedon and Dandenong Ranges, the original floorplan of this grand and glorious 41-bedroom property has been substantially reconfigured over the years yet still retains a wealth of its timeless original features, including etched and hand-painted windows, marble fireplaces, servants’ bells, ceiling roses, panelled doors, cotton reel balustrading, plaster arches and vast cellaring.

Having enjoyed a successful history as a guest house for nearly four decades, Ivy Grange now invites those with a fresh vision to either restore this Kew icon to its former glory as an opulent family home, renovate the premises to continue as guest accommodation, capitalise on the large number of rooms and use the property as a medical clinic or transform it into a luxurious mansion apartment development (STCA).

Thanks to the wide scope of potential, the premises can also be used as a veterinary clinic, health services centre, childcare centre, high-end restaurant, accommodation for international students, an aged care facility and more!

Currently generating approximately $250k pa in rental income, the return for investors is considerable, with the possibility of even greater returns in the future.

An easy walk to Kew Junction’s popular shops, cafes and restaurants, bus and tram transport and Studley Park walking and cycling paths and moments to elite private schools, golf courses and the Eastern Freeway, this is an opportunity of a lifetime.

View More #

Floor Plans

Location

  • Contact the agency

    To request an inspection

  • # Call # Email

Theo Politis

Agent Name

Carmen Stenta

Agent Name

# Report Listing

Looking for a property?

  • Top listings
  • Investment
  • Development
  • Personal home
  • Price reports
  • Suburb reports

Do you own a property?

  • Place a free listing
  • Services for private advertisers
  • Guide to selling your home
  • Insurance
  • Improve the photos of your listing
  • Value your property for free

Are you a real estate proffesional?

  • Publish your agencies properties
  • Already a client? Log into your account
  • Advertising on Australian Real Estate
  • Australian Real Estate data technology for property insights
  • Real Estate courses